TRIANGLE OF HAPPINESS
Zürich, Schweiz
Verdichtungsgeschichte zwischen Lärm und Natur


Konzept

Zonierung und Durchlässigkeit

Öffentliche Nutzungen und Flächen für Gemeinschaftsaktivitäten

Situationsplan

Isometrie

Garten

Hof

Hauptplatz



Schnitte


Fassaden

Erdgeschoss

Regelgeschoss


Lärmtypologie


Laubengangtypologie


Experimentalhaus

Umgang mit Lärm (Lärmquelle von Süden)


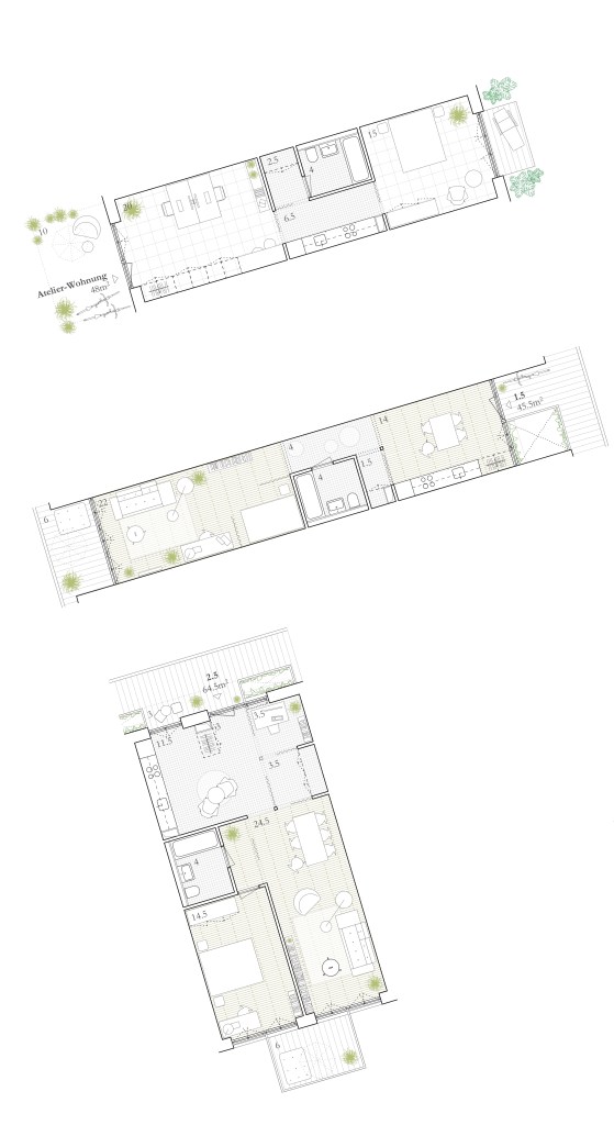
Wohnungstypologien